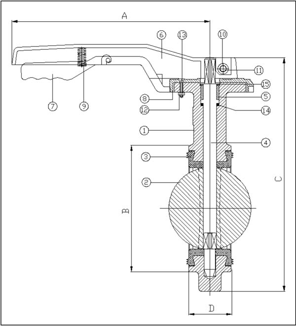
Затворы поворотные дисковые межфланцевые, Ру10, Ру16 для воды, газа, пара, нефти, химических составов и агрессивных сред.
Тип : WK 32-150
Вариант исполнения : чугун.
Затворы поворотные дисковые применяются в качестве запорно-регулирующих устройств трубопроводов.
![]() |
![]() |
![]() |
![]() |




